Exklusive barrierefreie 4,5 Zimmer-Whg. im OG - modern & energiearm -

Ansprechpartner

Sandra und Günther Weber
Telefon: 004971482090081
weber@immobilienservice-maier.com

Objekt anfragen

(Datenschutzhinweise anzeigen)

* Pflichtfeld

Objektdaten

Ort: 71717 Beilstein / Schmidhausen
Wohnfläche: 107,64 m²
Zimmer: 4,5
Baujahr: 2024
Schlafzimmer: 3
Badezimmer: 1
TV: ja
Keller: ja
Heizungsart: Fußbodenheizung
Befeuerung / Energieträger: Elektro
Stellplätze: 1
Stellplatztyp: Freiplatz
Verfügbar ab: 21.03.2026

Preise

Miete: 1.490 € / Monat
Nebenkosten: 330,00 € / Monat
Provision: Auftraggeber des Maklers ist der Vermieter
Stellplatzmiete 40,00 € / Monat
Kaution: 4.470,00 €

Energiepass

Typ: Bedarfsausweis
Gültig bis: 29.01.2036
Energiekennwert: 3.10 kWh/(m²*a)
Energieeffizienzklasse: A+

Beschreibung

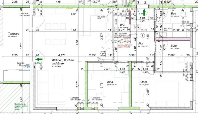
Willkommen in Ihrem neuen Zuhause: einer exklusiven, barrierefreien Etagenwohnung in Beilstein / Schmidhausen, die all Ihre Wohnträume wahr werden lässt. Diese moderne Wohnung, aus dem Jahr 2024, bietet als Erstbezug eine großzügige Wohnfläche von ca. 108 m², aufgeteilt in 4,5 Zimmer, darunter zwei helle Schlafzimmer, ein stilvolles Büro und ein offenes Wohn-/Esszimmer, alles mit hochwertigem Design-Vinyl-Boden ausgelegt.

Genießen Sie den Luxus eines großen West-Balkons, der zum Entspannen und Verweilen einlädt. Die Etagenwohnung im 1. Stock ist durch einen Aufzug bequem erreichbar und bietet darüber hinaus ein hervorragend ausgestattetes Tageslicht-Badezimmer mit bodentiefer Dusche, elegantem Waschbecken, WC und Handtuchheizung.
Die Wohnung kann bei Bedarf mit einer Einbauküche ausgestattet werden.

Zahlreiche Extras versüßen den Alltag: elektrische Rollläden und ein moderner Video-Haussprechapparat gehören zur Standardausstattung. Zudem bietet die Wohnung sowohl einen eigenen Keller für zusätzlichen Stauraum als auch Gemeinschaftseinrichtungen wie eine Waschküche, einen Fahrradabstellplatz und einen Kinderwagenabstellraum.

Für die sichere Unterbringung Ihres Fahrzeugs stehen sowohl ein Tiefgaragenstellplatz für 80€/Monat als auch ein Außenstellplatz für 40€/Monat zur Verfügung. Die Lage überzeugt durch ihre ruhige Umgebung und die Nähe zu wichtigen Infrastrukturpunkten, was das Leben in dieser Wohnung besonders attraktiv macht.

Erleben Sie modernen Wohnkomfort in einer Umgebung, die keine Wünsche offenlässt. Zögern Sie nicht und nehmen Sie Teil an dieser einzigartigen Gelegenheit, eine hochwertige Wohnung im wunderschönen Beilstein / Schmidhausen zu mieten. Ihre neue Traumwohnung wartet auf Sie!

Ausstattung

- Etagenwohnung 1. Stock
- barrierefrei
- Wohnen/Essen (Design-Vinyl-Boden)
- Elternschlafzimmer (Design-Vinyl-Boden)
- Kinderzimmer (Design-Vinyl-Boden)
- Büro (Design-Vinyl-Boden)
- Flur (Design-Vinyl-Boden)
- Tageslicht-Badezimmer mit bodentiefer Dusche, Waschbecken, WC, Handtuchheizung (Fliesen)
- großer West-Balkon
- elektrische Rollläden
- Kabel-TV
- Video-Haussprechapparat
- Aufzug
- Keller
- Waschküche
- Fahrradabstellplatz
- Kinderwagenabstellraum
- Tiefgaragenstellplatz (80€/Monat)
- PKW-Stellplatz außen (40€/Monat)

******************************************
Wünschen Sie einen Besichtigungstermin?

Die Immobilie spricht Sie an?
-> Bitte senden Sie eine Anfrage über das Portal mit Vor-/Nachname, Anschrift, Telefonnummer und Emailadresse. Automatisch erhalten Sie eine Antwortmail mit dem Link zu dem Exposé.

Antwortmail mit Link zu dem Exposé erhalten?
-> Bestätigen Sie unsere AGB, Provisionsvereinbarung und Widerrufsbelehrung um das Exposé zu erhalten.
Achtung! Bitte überprüfen Sie auch Ihren Spamordner sollten Sie zeitnah keine Antwort erhalten haben!

Objekt und Lage gefallen?
-> Antworten Sie auf diese E-Mail mit dem Exposé und lassen Sie uns wissen, ob Sie einen Besichtigungstermin und/oder weitere Unterlagen zum Objekt wünschen. Den Ansprechpartner des Objekts finden Sie auf der letzten Seite des Exposés.

Sobald wir Ihre Email erhalten haben, werden wir Ihr Anliegen umgehend bearbeiten und Sie per Mail oder telefonisch kontaktieren.
******************************************

Umgebung

Schmidhausen liegt im Landkreis Heilbronn, im nördlichen Baden-Württemberg. Diese war einst eine eigenständige Gemeinde und wurde 1971 nach Beilstein eingemeindet, mit dem es heute zusammengewachsen ist.

Die Stadt Beilstein ist ein Weinstädtchen mit ca. 6.150 Einwohnern, gelegen am Fuß der Löwensteiner Berge.
In Beilstein gibt es vier Kindergärten, eine Grundschule und ein Gymnasium.

Ein umfassendes Angebot an Handel, Handwerk, Dienstleistungen, Gastronomie und vielfältige Vereinsaktivitäten bereichert das Leben in dieser schönen Stadt.

Die Autobahn A 81 ist in wenigen Minuten zu erreichen.
Zudem besteht eine sehr gute Anbindung an den öffentlichen Nahverkehr mit Busverbindungen nach Heilbronn und Marbach, die Haltestelle liegt nur rund 100 m entfernt.

Sonstiges

*WICHTIG*WICHTIG*WICHTIG*WICHTIG*WICHTIG*

Bitte beachten Sie, dass wir nur schriftliche Anfragen über das Portal mit Angabe Ihrer vollständigen Anschrift bearbeiten können.

Zusätzlich bitten wir Sie Angaben bez. Ihrer derzeitig ausgeübten Tätigkeit, Ihres Alters, der angedachten Mietdauer, Haltung von Tieren und der Personenanzahl zu machen.

Besichtigungstermine sind grundsätzlich kostenfrei.

Gerne können Sie sich kostenfrei und unverbindlich in unsere Kundensuchkartei eintragen. Besuchen Sie dazu unsere Internetseite www.immobilienservice-maier.de und tragen Sie sich unter der Rubrik "Für Suchende" ein. Sobald wir Ihnen ein passendes Objekt anbieten können, werden wir Sie umgehend informieren.

Alle Angaben sind ohne Gewähr und basieren ausschließlich auf Informationen, die uns von unserem Auftraggeber zur Verfügung gestellt wurden. Wir übernehmen keine Gewähr für die Vollständigkeit, Richtigkeit und Aktualität dieser Angaben.