Licht, Luft & Weite: Wohnung mit außergewöhnlich großer Terrasse
Ansprechpartner
Martina FellmethTelefon: 004971412391498
fellmeth@immobilienservice-maier.com
Objekt anfragen
Objektdaten
| Ort: | 71672 Marbach |
| Wohnfläche: | 121 m² |
| Zimmer: | 4 |
| Baujahr: | 1989 |
| Schlafzimmer: | 3 |
| Badezimmer: | 1 |
| Stockwerke: | 3 |
| Keller: | ja |
| Haustiere erlaubt: | nein |
| Heizungsart: | Zentralheizung |
| Befeuerung / Energieträger: | Gas |
| Stellplätze: | 1 |
| Stellplatztyp: | Garage |
| Verfügbar ab: | sofort |
Preise
| Miete: | 1.500 € / Monat |
| Nebenkosten: | 250,00 € / Monat |
| Provision: |
Auftraggeber des Maklers ist der Vermieter. |
| Stellplatzmiete | 100,00 € / Monat |
| Kaution: | 4.800,00 € |
Energiepass
| Typ: | Verbrauchsausweis |
| Gültig bis: | 23.01.2028 |
| Energieverbrauchkennwert: | 112.00 kWh/(m²*a) |
| Energieeffizienzklasse: | D |
Beschreibung
Diese geräumige Wohnung befindet sich im Erdgeschoss eines Mehrfamilienhauses mit nur drei Parteien. Das Haus liegt in einer ruhigen Anliegerstraße im Süden von Marbach am Neckar. Die bezaubernde Altstadt sowie sämtliche Einrichtungen des täglichen Lebens und die Anbindung an den öffentlichen Nahverkehr sind in wenigen Gehminuten zu erreichen.
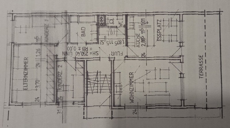
Die insgesamt ca. 121 m² Wohnfläche verteilen sich auf ein Wohnzimmer, einen Essbereich mit offener Küche, drei Schlafzimmer, ein Badezimmer, ein separates WC und einen Flur. Ein besonderes Highlight ist die äußerst großzügige Terrasse, welche vom Essbereich und vom Wohnzimmer begehbar ist.
Die Wohnung wird ohne Einbauküche übergeben. Dies bietet Ihnen die einmalige Gelegenheit, das Herzstück Ihres Zuhauses exakt nach Ihrem Geschmack und Ihren technischen Anforderungen zu planen – ohne Kompromisse bei Farbe oder Ausstattung.
Ein der Wohnung zugeordneter Kellerraum und ein gemeinschaftlich genutzter Wasch- und Trockenraum runden dieses Angebot ab.
Eine Einzelgarage mit Stellplatz (insg. 100,-€ pro Monat) gehört zur Wohnung und muss mit angemietet werden.
Neugierig? Dann fordern Sie einfach das ausführliche Exposé an.
Besichtigungstermin erwünscht? Senden Sie uns bitte eine schriftliche Anfrage über das Portal mit folgenden Angaben:
- Ihre vollständige Anschrift
- Berufliche Tätigkeit
- Alter
- Geplante Mietdauer
- Haustierhaltung (falls zutreffend)
- Anzahl der einziehenden Personen
Wir freuen uns auf Ihre Anfrage!
Ausstattung
Die 4-Zimmerwohnung verfügt über folgende Merkmale:
- Wohnzimmer (Laminatboden)
- Essbereich mit offener Küche (Fliesen/Laminatboden)
- Kinderzimmer (Laminatboden)
- Schlafzimmer (Laminatboden)
- Gästezimmer (Laminatboden)
- Badezimmer (Fliesen)
- separates WC (Fliesen)
- Flur (Laminatboden)
- Bad mit Dusche und Badewanne
- Küche: Nicht vorhanden (mieterseitiger Einbau erforderlich)
- äußerst großzügige Terrasse
- 3 Parteien im Haus
- Keller
- Garage mit Stellplatz (insg. 100,- € pro Monat)
- Wasch-/Trockenraum (gemeinschaftlich genutzt)
Umgebung
Die angebotene Erdgeschosswohnung befindet sich im Süden der charmanten Stadt Marbach, einer historisch bedeutenden Stadt im schönen Bundesland Baden-Württemberg. Marbach, bekannt als Geburtsort des Dichters Friedrich Schiller, bietet eine reizvolle Mischung aus Kultur, Geschichte und moderner Lebensqualität. Die Wohnung liegt in einer ruhigen und begehrten Wohngegend, die sich durch ihre grüne Umgebung und die Nähe zur Natur auszeichnet.
Die Umgebung bietet eine hervorragende Anbindung an den öffentlichen Nahverkehr sowie eine gute Erreichbarkeit der umliegenden Städte. Geschäfte des täglichen Bedarfs, Schulen und Freizeiteinrichtungen sind bequem erreichbar, was die Lage besonders attraktiv für Familien und Berufstätige macht. Die malerische Landschaft der Region lädt zu langen Spaziergängen und Freizeitaktivitäten im Freien ein, während die nahegelegenen Weinberge und das Neckartal zusätzlichen Charme versprühen.
Insgesamt bietet diese Lage eine harmonische Balance zwischen urbanem Komfort und naturnahem Wohnen, was sie zu einem idealen Wohnort für alle macht, die das Beste aus beiden Welten genießen möchten.
Sonstiges
*WICHTIG*WICHTIG*WICHTIG*WICHTIG*WICHTIG*
Bitte beachten Sie, dass wir nur schriftliche Anfragen über das Portal mit Angabe Ihrer vollständigen Anschrift bearbeiten können.
Zusätzlich bitten wir Sie Angaben bez. Ihrer derzeitig ausgeübten Tätigkeit, Ihres Alters, der angedachten Mietdauer, Haltung von Tieren und der Personenanzahl zu machen.
Besichtigungstermine sind grundsätzlich kostenfrei.
Gerne können Sie sich kostenfrei und unverbindlich in unsere Kundensuchkartei eintragen. Besuchen Sie dazu unsere Internetseite www.immobilienservice-maier.de und tragen Sie sich unter der Rubrik "Für Suchende" ein. Sobald wir Ihnen ein passendes Objekt anbieten können, werden wir Sie umgehend informieren.
Alle Angaben sind ohne Gewähr und basieren ausschließlich auf Informationen, die uns von unserem Auftraggeber zur Verfügung gestellt wurden. Wir übernehmen keine Gewähr für die Vollständigkeit, Richtigkeit und Aktualität dieser Angaben.













